Home
Sobre Nós
Portfólio
Artigos
Contato
Projeto Usucapião
Projeto Legal - Usucapião
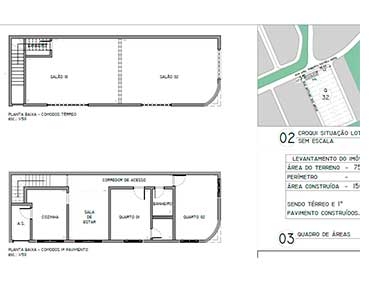
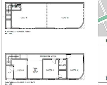
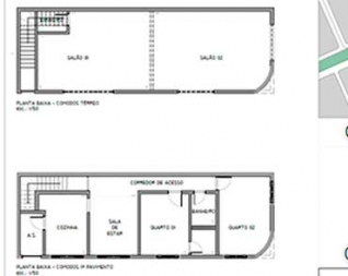
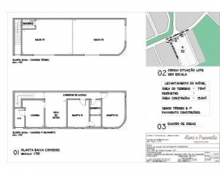
O projeto contempla:
Visita ao local;
Registro fotografico;
Medição da área edificada;
Desenho técnico - planta baixa;
Memorial descritivo.
IMAGENS:
Visite nossas redes sociais
Nos chame no WhatsApp
Facebook
Instagram